鹿特丹伊拉斯姆斯大學體育場館:VenhoevenCS
VenhoevenCS 為鹿特丹伊拉斯姆斯大學 Woudestein 校區設計的能源平衡的體育館開放了。體育館促進了鹿特丹伊拉斯姆斯大學 Woudestein 校區的社交和健康的學生生活。VenhoevenCS 建筑+城市主義工作室通過將體育館堆疊在一個緊湊的地塊上來容納 50 多個體育項目設計了這個體育綜合體。該綜合體的功能是能源中立的,活潑的公共內部是由循環收獲的、再利用的材料制成的。貫穿建筑的中軸線同時具有目的地和中轉站的功能,是一個真正的物理和社會連接器。體育場館在今年秋天正式開放了。


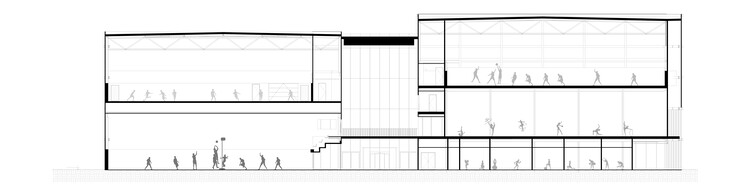
鹿特丹伊拉斯姆斯大學的新體育館場是一個訓練和比賽場所;一個供大約 11000 名學生、同事以及頂級運動員鍛煉和進行團隊運動的場所。體育大樓標志著 Woudestein 大學校區的入口。在尊重校園布局的前提下,我們在緊湊的地塊上安排了所有的體育設施,將它們組織成堆疊的 "運動盒子"。這些盒子形成了兩個體量,相互之間略有偏移,由公共核心相連。


這個公共區域將功能、運動和運動員,以及校園的兩側連接了起來。作為 VenhoevenCS 的建筑師兼合伙人和總監的 Manfred Wansink 提到:“室內的走道真的是一個真正的物理和社會連接點。明亮、高大、有樓梯和人行道、大量綠化,當然還有一個酒吧。從這里看,這些運動學生所呈現的場景鼓勵了人們的參與”。透明度和韻律。體育場館由玻璃和鋁制表皮包裹,水平銜接和垂直鰭狀物在多種節奏中相互作用。


體育館略微彎曲的東面的立面以全高的玻璃角打開。另外,中央通道的兩端都是純玻璃的。當然,這種透明性最大限度地增加了視野,實現了室內外的平穩過渡,并允許日光照入。它也標志著熱鬧的地點:街道及以上的公共空間和不需要封閉大廳的體育活動。

由于 VenhoevenCS 和伊拉斯姆斯大學在可持續發展和能源消耗領域的雄心壯志,該建筑的實現了日益需求的能源平衡。它內置了完整的設施以捕獲、保留、交換和再利用水和太陽能,并盡量減少其使用。就如巴黎 2024 年的水上運動中心和 Lokeren 的新體育場館(BE,2023),這些都是 VenhoevenCS 所有設計的主要原則。此外,我們用從循環拆遷中收獲的建筑材料塑造了公共內部空間。


例如,從荷蘭的 Zeist 的一個前青少年拘留中心所獲得的金屬板在這被用作天花板,我們讓埃因霍芬理工大學展館的 1100 平方米的木地板獲得了新的生命。他們在這里被用作室內走道的外墻板。通過強調這種再利用,我們的目的是讓社會參與并激勵學生群體為循環經濟作出貢獻。

分享文章,請標明來源: http://www.91youqu.cn/xuni/1295.html 免責聲明: 圖片內容來源網絡,本網站對作品圖片的版權未作證實,對作品的原創性、真實性不作保證,也不承擔由此產生的法律責任。如對作品版權有疑議,請及時與我們電話聯系:400-035-0358 進行刪除.