Kanemitsusyuzo商鋪:FATHOM
該項目位于廣島縣東廣島市黑瀨町,是對從1898年開始營業的Kanemitsu清酒釀酒廠直銷處進行的改造。當我第一次從國道上遠遠看到釀酒廠的大墻時,這個有形的文化財產,讓我覺得自己仿佛看到了層層疊疊的清酒釀造歷史。

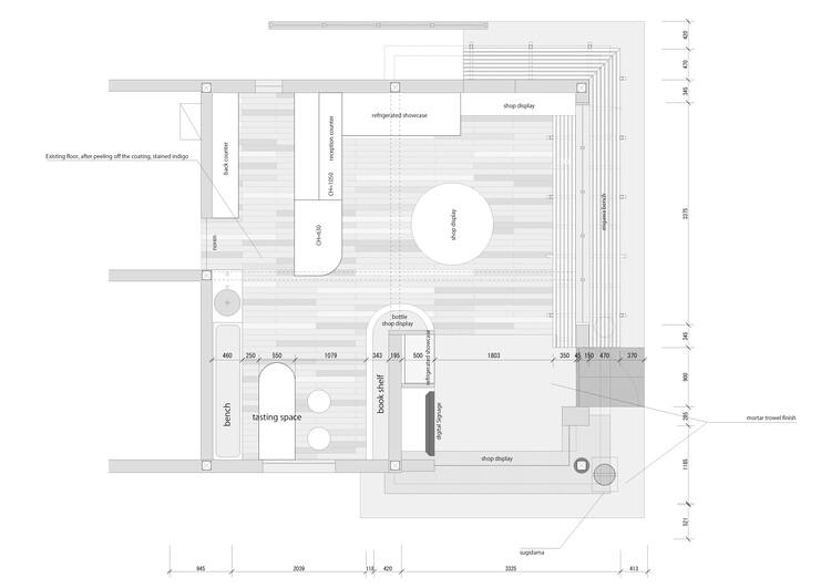
燒焦的雪松鑲板、石膏和紅磚屋頂,是該小鎮的特色。在三種材料重疊之間,兩條線出現在它們之間的邊界處。這是一條長期保存和積累傳統而形成的美麗水平線。對于相鄰的直銷店,在保留清酒釀酒廠原有的水平線的同時,創建了一條新的線,使得建筑物的一部分有機地上升。


現有建筑物的屋檐略微突出,向下逐漸變得更大,以形成新的線條。 據說清酒最初是為神明而制作的,因此我們使用石膏打造了一個讓人聯想到神社或佛寺的空間。 通過提高入口處的線,將其用為這個空間的起點,我希望它成為所有參觀者參觀的起點,為啤酒廠的傳統和歷史譜寫新的篇章。



另一條線以入口為中心,將其功能分為左右兩部分。 入口右側有一個L形長凳,功能與走廊相同,其靈感源自明治初期的一家酒類商店,該商店的走道與街道直接相連。入口左側,窗戶被手工打磨,原本要丟棄的清酒玻璃瓶被粉碎、混合、打磨,使現代玻璃技術像化石一樣被封印在歷史進程中。


在內部空間中,不同的材料被用來融合成一條有機的R線,當我看到發酵罐中重疊和復制的氣泡時,在透明的液體中,我感受到了其所表達了無形的生命活力。釀酒廠使用的材料,如煙囪的磚塊、toji(首席釀酒師)所穿的靛藍色圍裙、銅板和玳瑁網,在釀酒廠中被自然的使用,但轉換為不同的用途。



一個小的“凸起”在被田野包圍的平靜的水平線上被創建出來。 我相信這反映了toji(首席釀酒師)在繼續迎接新的挑戰的同時,希望保留已經流傳下來的悠久歷史的心態。我希望這些感覺會像天線一樣,從新創建的凸起中如同漣漪一樣蔓延開來。

分享文章,請標明來源: http://www.91youqu.cn/xuni/1133.html 免責聲明: 圖片內容來源網絡,本網站對作品圖片的版權未作證實,對作品的原創性、真實性不作保證,也不承擔由此產生的法律責任。如對作品版權有疑議,請及時與我們電話聯系:400-035-0358 進行刪除.